Каталог

9105660 Quadro 30/550 Stop Control, направляющая частичного выдвижения, ЕВ 20, правая

Артикул товара: 32897
Избранные товары

Характеристики

Комплектующие Направляющая правая
Функция выдвижения Стандарт
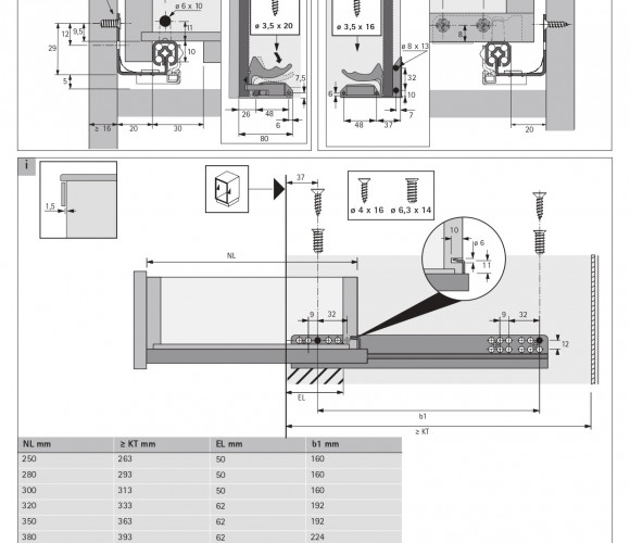
Длина 550 мм
Тип выдвижения Частичное
Несущая способность 25 кг

Описание

Quadro 25 с функцией Stop Control, 550 мм, Правый

  • - Stop Control — встроенный механизм закатывания для самостоятельного закрывания
  • - Комфортный надвижной монтаж с фиксаторами и регулировка по высоте без инструмента
  • - Гибкая система замены — вместо Quadro с частичным выдвижением устанавливаются направляющие полного выдвижения, размеры корпуса, ящика и передней - панели при этом не меняются
  • - Нагрузочная способность соответствует стандарту EN 15338, уровень 3

Цена в Уфе
Опт: 670,01 ₽ / шт.
938,01 ₽ / шт.

Наличие товара в городах
Челябинск нет в наличии
Уфа 2 шт.
Тюмень нет в наличии

Выбрать город
Челябинск
Челябинск, ул. Шарова, 77
+7 (351) 734-97-98 (многоканальный)
Уфа
Республика Башкортостан, Уфа, Базисный проезд, 4
+7 (347) 216-55-40 (многоканальный)
Тюмень
Тюмень, Московский тракт, 136/9
+7 (3452) 66-63-33 (многоканальный) , +7 982 972-27-33