Каталог

Престиж Напр. Верхние (Бук) KF1-20****

Артикул товара: 25694
Избранные товары

Характеристики

Комплектующие Направляющие
Покрытие ПВХ-пленка
Цвет Бук

Описание

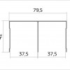
Направляющая двойная ВЕРХНЯЯ системы Престиж 
Цвет - Бук 
Товар продаётся хлыстами
Длина хлыста: 2м  3м  4м  6м

Минимальный заказ 2 погонных метра 

ИНСТРУКЦИЯ 

Цена в Уфе
772,29 ₽ / п/м

Наличие товара в городах
Челябинск нет в наличии
Уфа нет в наличии
Тюмень нет в наличии

Выбрать город
Челябинск
Челябинск, ул. Шарова, 77
+7 (351) 734-97-98 (многоканальный)
Уфа
Республика Башкортостан, Уфа, Базисный проезд, 4
+7 (347) 216-55-40 (многоканальный)
Тюмень
Тюмень, Московский тракт, 136/9
+7 (3452) 66-63-33 (многоканальный) , +7 982 972-27-33