Каталог
Главная
Каталог
Избранное
0
Корзина
0
Войти
Уфа
Квадрат
О компании
Новости
Вакансии
Контакты
Документы
Политика конфиденциальности
Пользовательское соглашение
Соглашение об использовании cookie
Покупателям
Прайсы
Услуги Цеха
Доставка и оплата
Наши партнеры
Материалы для скачивания
Egger
Lamarty
SyPly
Каталог
Плитные материалы
Фурнитура
Столешницы
Компакт-плиты EGGER
Пластик EGGER
Мой EGGER
Фасады
Каталог
Новости
Контакты
Услуги Цеха
Анкета
Покупателям
О компании
Телефон:
Каталог
Плитные материалы
Плитные материалы
Всего товаров: 566
Декоры плит Lamarty
Товары ЛДСП Lamarty
Панели Kastamonu
Панели ACRYMAT
Панели EVOGLOSS
Панели EVOSOFT
Панели ACRYLIC
Декоры плит EGGER
ЛДСП EGGER
ЛМДФ EGGER
Заказ образцов
Фасадные полотна РЕХАУ
Плиты TSS CLEAF
О плитах TSS CLEAF
Фанера SyPly
МДФ Kastamonu
PerfectSense EGGER
PerfectSense
PerfectSense Smart
PerfectSense Top
PerfectSense Лакированные ДСП
Панели AGT
О панелях AGT
Панели AGT 3P двусторонние
Панели AGT Supramat двусторонние
Панели AGT односторонние
МДФ и ХДФ декорированные
ДВП декорированная
МДФ EGGER
Шлифованная ДВП, ХДФ
Фурнитура
Фурнитура
Всего товаров: 7 571
01. МОЙКИ И СМЕСИТЕЛИ
1.1. Мойки каменные
1.2. Мойки из нержавеющей стали
1.3. Раковины и умывальники
1.4. Смесители
1.5. Измельчители
1.6. Аксессуары
02. КРОМОЧНЫЕ МАТЕРИАЛЫ
2.1. Кромка ABS и ПВХ
2.2. Кромка меламиновая с клеем
2.3. Профиль накладной
2.4. Кант врезной
03. ФАСАДНЫЕ, ВРЕЗНЫЕ И НАКЛАДНЫЕ ПРОФИЛИ
3.1. Профиль фасадный
3.2. Профиль врезной
3.3. Профиль накладной
3.4. Профиль для стеклянных полок с подсветкой
04. СИСТЕМЫ ДВЕРЕЙ
4.1. Системы раздвижных дверей
4.2. Системы дверей с верхним подвесом
4.3. Системы складных дверей
4.4. Системы распашных дверей
4.5. Системы мансардных дверей
4.6. ARISTO Система 4 в 1
Стопора для дверей купе
Уплотнители для дверей купе
Шлегель
05. НАПОЛНЕНИЕ ШКАФОВ И ГАРДЕРОБНЫХ КОМНАТ
5.01. Держатели, полки выдвижные
5.02. Выдвижные корзины
5.03. Штанги, держатели для штанг
5.04. Вешалки для брюк, галстуков, ремней
5.05. Пантографы
5.06. Поворотные механизмы для зеркал
5.07. Обувницы
5.08. Алюминиевая интерьерная система VITRA
5.09. Гардеробная система ARISTO
5.10. Стеллажная система ARISTO
5.11. Каркасная система CADRO
06. КУХОННЫЕ КОМПЛЕКТУЮЩИЕ
6.01. Рейки и навески
6.02. Посудосушители
6.03. Рейлинговые навески
6.04. Бокалодержатели и настольные посудосушители
6.05. Полки для барной трубы Q50мм
6.06. Планки для мебельного щита
6.07. Пристеночные плинтуса и аксессуары для них
6.08. Профиля и планки для столешниц
6.09. Поддоны в тумбу под мойку
6.10. Выкатные корзины
6.11. Вкладыши для кухонных принадлежностей
6.12. Системы в угловую базу
6.13. Цоколя и аксессуары для них
6.14. Вёдра и системы сортировки
6.15. Прочее
07. ТРУБЫ И СИСТЕМЫ КРЕПЕЖА
7.1. Рейлинговая система Q16мм
7.2. Система JOCKER Q25мм
7.3. Барная труба Q50мм
08. СИСТЕМЫ ВЫДВИЖНЫХ ЯЩИКОВ
8.1. Ящик AVANTECH YOU
8.2. Ящик InnoTech Atira
8.3. Ящик СТАРТ
8.4. Ящик СТАРТ с тонкими боковинами
8.5. Метабоксы
8.6. Роликовые направляющие
8.7. Шариковые направляющие
8.8. Направляющие скрытого монтажа
8.9. Ящик GTV Модерн Бокс PRO
8.10. Ящик SAMET ALPHABOX
8.11. Ящик SAMET FLOWBOX
8.13. Ящик Hafele Matrix
09. ПОДЪЁМНЫЕ МЕХАНИЗМЫ
9.1. Газлифты
9.2. Кронштейны
9.3. Подъёмные механизмы для откидывающихся вверх створок
9.4. Подъёмные механизмы с выносом
9.5. Подъёмные механизмы для складных створок
9.6. Механизмы параллельного подъёма фасадов
10. ПЕТЛИ И АМОРТИЗАТОРЫ
10.1. Мебельные петли
10.2. Амортизаторы и толкатели
10.3. Карточные петли
10.4. Потайные петли
10.5. Рояльные петли
10.6. Петли для стеклодверей
10.7. Петли для рамочных профилей
11. СОЕДИНИТЕЛЬНАЯ ФУРНИТУРА
11.1. Эксцентриковая стяжка
11.2. Угловые стяжки
11.3. Конфирмат (евровинт)
11.4. Шурупы
11.5. Полкодержатели
11.6. Стеклодержатели
11.7. Кронштейны для полок
11.8. Стяжки для столешниц
11.9. Прочее
12. ЗАМКИ МЕБЕЛЬНЫЕ
13. ЛИЦЕВАЯ ФУРНИТУРА
13.1. Мебельные ручки
13.2. Профильные ручки
13.3. Крючки
14. ОПОРЫ
14.1. Опоры декоративные
14.2. Опоры для столов
14.3. Опоры колёсные
14.4. Подпятники
15. СТУЛЬЯ И ТАБУРЕТЫ
15.1. Каркасы табуретов
15.2. Каркасы стульев
15.3. Сиденья для табуретов
15.4. Сиденья для стульев
16. ЭЛЕКТРОТЕХНИКА И СВЕТИЛЬНИКИ
16.1. Розетки, выключатели
16.2. Датчики движения
16.3. Инфракрасные выключатели
16.4. Врезные светильники
16.5. Накладные светильники
16.6. Блоки питания, контроллеры, диммеры
16.7. Светодиодная подсветка
16.8. Профили и соединители для светодиодных лент
17. ШАБЛОНЫ, СТАНКИ, ИНСТРУМЕНТ
17. ШАБЛОНЫ, СТАНКИ, ИНСТРУМЕНТ
18. КОМПЛЕКТУЮЩИЕ ДЛЯ ОФИСНОЙ ТЕХНИКИ
18.1. Боксы для дисков
18.2. Полка под клавиатуру
18.3. Кабель-канал
18.4. Подставка под системный блок
19. РЕМОНТНЫЕ МАТЕРИАЛЫ
19.1. Воск
19.2. Штрих
19.3. Клей и силикон
19.4. Карандаш
19.5. Маркер
19.6. Жидкая кожа
19.7. Шпатлёвка
20. ПРОЧЕЕ
20.01. Скотч двусторонний
20.02. Заглушки
20.03. Поворотный механизм под TV
20.04. Муфта для установки ручки в стекле
20.05. Шпингалет
20.06. Механизмы фиксации столешниц
20.07. Магниты
20.08. Декор
20.09. Жалюзи
20.10. Пластиковые профили
20.11. Лестница
20.12. Упаковочные материалы
Столешницы
Столешницы
Всего товаров: 1 042
Скиф (распродажа остатков)
Мебельные щиты Скиф (распродажа остатков)
Форма-Стиль
Форма-Стиль декоры
Столешницы Форма и Стиль 3000-600-38мм
Столешницы Форма и Стиль 3000-1200-38мм
Столешницы Форма и Стиль 4100-600-38 мм
Мебельные щиты Форма и Стиль 3000 мм
Мебельные щиты Форма и Стиль 4100 мм
Кромка Форма и Стиль
Столешницы из компакт-плит Форма и Стиль 3050-650-12мм
Столешницы из компакт-плит Форма и Стиль 4200-650-12мм
Плинтуса Форма и Стиль
АМК ТРОЯ
АМК ТРОЯ декоры
Столешницы АМК Троя 3000-600-26мм
Столешницы АМК Троя 3000-600-38 мм
Столешницы двух завальные АМК Троя 3000-900-26 мм
Столешницы двух завальные АМК Троя 3000-900-38 мм
Столешницы АМК Троя 4100-600-38 мм
Кромка АМК Троя
Мебельные щиты АМК Троя 3000 мм
Мебельные щиты из компакт-плит АМК Троя
Столешницы из компакт-плит АМК Троя
Мебельные щиты АМК Троя 4100 мм
EGGER
Декоры столешниц EGGER
Столешницы EGGER R3 4100-600-38 мм
Столешницы EGGER с торцевой кромкой 4100-650-38 мм
Столешницы EGGER PerfectSense лакированные 4100-650-38 мм
Столешницы EGGER из компакт-плит 4100-650-12 мм
Столешницы двух завальные EGGER R3 4100-920-38 мм
Мебельные щиты EGGER
Плинтуса EGGER
Кромка для столешниц ABS EGGER
Плинтус Thermoplast
Плинтус 120
Заглушки 120
Уголки 120
Плинтус 850
Плинтус CEZAR
Заглушки для 850 и CEZAR
Уголки для 850 и CEZAR
Плинтус Rehau
Плинтус
Уголки
Заглушки
Компакт-плиты EGGER
Компакт-плиты EGGER
О компакт-плитах EGGER
Пластик EGGER
Пластик EGGER
Всего товаров: 1
О пластике
Мой EGGER
Мой EGGER
Фасады
Фасады
Мебельные образцы, каталоги
Мебельные образцы, каталоги
Всего товаров: 15
Главная
Каталог
Фурнитура
06. КУХОННЫЕ КОМПЛЕКТУЮЩИЕ
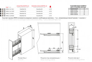
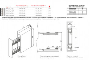
6.10. Выкатные корзины
a.Subdivision_ID IN (1146) AND a.bPrice > 0 AND (a.bStockUnits > 0 OR a.bLStockDate > '2025-11-30')
6.01. Рейки и навески
6.02. Посудосушители
6.03. Рейлинговые навески
6.04. Бокалодержатели и настольные посудосушители
6.05. Полки для барной трубы Q50мм
6.06. Планки для мебельного щита
6.07. Пристеночные плинтуса и аксессуары для них
6.08. Профиля и планки для столешниц
6.09. Поддоны в тумбу под мойку
6.10. Выкатные корзины
6.11. Вкладыши для кухонных принадлежностей
6.12. Системы в угловую базу
6.13. Цоколя и аксессуары для них
6.14. Вёдра и системы сортировки
6.15. Прочее
6.10. Выкатные корзины
Не показывать недоступные товары
Цена, ₽
Тип корзины (5)
Бутылочница
Корзина под мойку
Корзина универсальная
Пенал выкатной
Посудосушитель выкатной
Тип системы (1)
Волшебный уголок
Функция выдвижения (3)
Демпфирование
Открывание от нажатия
Стандарт
Цвет (5)
Антрацит
Графит
Нержавеющая сталь
Хром
Черный
Ширина модуля (11)
150 мм
200 мм
300 мм
350 мм
400 мм
450 мм
500 мм
600 мм
700 мм
800 мм
900 мм
Крепление (2)
Боковое
Донное
Направление открывания двери (2)
Левое
Правое
Сбросить
Применить
По названию
Сортировать
По названию
По возрастанию цены
По убыванию цены
Фильтры
New
артикул: 45646
Cargo mini 150мм FLORA KR05/1/3/150/R/GRPH с доводчиком, боковое крепление ГРАФИТ БОЯРД
8 318,19 ₽ / шт
В корзине
В корзину
артикул: 47485
Cargo mini 150мм FLORA PUSH KR05/1/4/150/L, боковое крепление ХРОМ БОЯРД
9 633,44 ₽ / шт
В корзине
В корзину
New
артикул: 49505
Cargo mini 150мм X. FIT KR43/1/3/150/L/GRPH с доводчиком, ЛЕВАЯ, ГРАФИТ БОЯРД
6 614,11 ₽ / шт
В корзине
В корзину
артикул: 39053
Cargo mini 150мм Квадро 1 + направл. Хеттих PUSH TO OPEN, бок. крепл. Левая, с крепл. к фасаду
5 780,44 ₽ / шт
В корзине
В корзину
артикул: 31834
Cargo mini 150мм Квадро 1 + направл. Хеттих, бок. крепл. Левая, с крепл. к фасаду
4 797,00 ₽ / шт
В корзине
В корзину
New
артикул: 36131
Cargo mini 150мм Квадро 1 + направл. Хеттих, бок. крепл. Левая, с крепл. к фасаду ЧЕРНЫЙ
4 467,60 ₽ / шт
В корзине
В корзину
артикул: 32618
Cargo mini 200мм Эконом 2, боков. крепл. ЛЕВАЯ
2 072,64 ₽ / шт
В корзине
В корзину
артикул: 47482
Cargo mini 200мм AURA KR36/1/3/200/L с доводчиком, ЛЕВАЯ, ХРОМ БОЯРД
6 789,50 ₽ / шт
В корзине
В корзину
артикул: 45826
Cargo mini 200мм Bellissimo KR08/1/3/200/L с доводчиком, ЛЕВАЯ, ХРОМ БОЯРД
4 139,20 ₽ / шт
В корзине
В корзину
артикул: 42024
Cargo mini 200мм Bellissimo KR08/1/3/200/L/GRPH с доводчиком, ЛЕВАЯ, ГРАФИТ БОЯРД
4 774,03 ₽ / шт
В корзине
В корзину
артикул: 45828
Cargo mini 200мм Bellissimo KR08/1/3/200/R с доводчиком, ПРАВАЯ, ХРОМ БОЯРД
4 953,76 ₽ / шт
В корзине
В корзину
артикул: 42023
Cargo mini 200мм Bellissimo KR08/1/3/200/R/GRPH с доводчиком, ПРАВАЯ, ГРАФИТ БОЯРД
4 678,92 ₽ / шт
В корзине
В корзину
артикул: 50190
Cargo mini 200мм Bellissimo PUSH KR08/1/4/200/L, ЛЕВАЯ, ХРОМ БОЯРД
4 192,33 ₽ / шт
В корзине
В корзину
артикул: 50191
Cargo mini 200мм Bellissimo PUSH KR08/1/4/200/L/GRPH, ЛЕВАЯ, ГРАФИТ БОЯРД
4 438,95 ₽ / шт
В корзине
В корзину
артикул: 35457
Cargo mini 200мм FLORA KR05/1/3/200/R с доводчиком, боковое крепление ХРОМ БОЯРД
15 810,42 ₽ / шт
В корзине
В корзину
артикул: 29427
Cargo mini 200мм KR03/1/1/200 без доводчика, боковое крепление ХРОМ БОЯРД
4 741,20 ₽ / шт
В корзине
В корзину
Sale
артикул: 29428
Cargo mini 200мм KR12/1/1/200 без доводчика, боковое крепление ХРОМ БОЯРД
2 488,03 ₽ / шт
В корзине
В корзину
артикул: 31835
Cargo mini 200мм Квадро 2 + направл. Хеттих, бок. крепл. Левая, с крепл. к фасаду
5 238,72 ₽ / шт
В корзине
В корзину
артикул: 28962
Cargo mini 300мм 3-х ярус. с доводчиком, донное крепл. 255х505х455 хром, LS3/300D/D
7 876,22 ₽ / шт
В корзине
В корзину
артикул: 33042
Cargo mini 300мм Квадро 3 + направл. Хеттих, бок. крепл. , с крепл. к фасаду
7 864,20 ₽ / шт
В корзине
В корзину
New
артикул: 33353
Cargo mini 350мм Корзина для бытовой химии с поддоном с дов. 450х280х360 LS1/350D/D
6 458,79 ₽ / шт
В корзине
В корзину
артикул: 29545
Cargo mini 400мм 3-х ярус. с доводчиком, донное крепл. 355х450х455 хром, LS3/400D/D LS3/400D/D
7 433,25 ₽ / шт
В корзине
В корзину
артикул: 33043
Cargo mini 400мм Квадро 4 + направл. Хеттих, бок. крепл. , с крепл. к фасаду
9 440,10 ₽ / шт
В корзине
В корзину
артикул: 29543
Cargo mini 450мм донное крепл. с доводчиком 405х450х435 хром, LS2/450D/D
10 071,20 ₽ / шт
В корзине
В корзину
артикул: 33044
Cargo mini 450мм Квадро 45 + направл. Хеттих, бок. крепл. , с крепл. к фасаду
10 281,60 ₽ / шт
В корзине
В корзину
Назад
1
2
3
4
Вперед
Выбрать город
Челябинск
Челябинск, ул. Шарова, 77
+7 (351) 734-97-98 (многоканальный)
Уфа
Республика Башкортостан, Уфа, Базисный проезд, 4
+7 (347) 216-55-40 (многоканальный)
Тюмень
Тюмень, Московский тракт, 136/9
+7 (3452) 66-63-33 (многоканальный) , +7 982 972-27-33